Architekt DI Josef Kopf

services

Projekte

contact

Dienstleistung

link


back
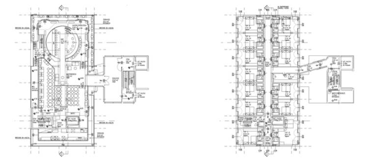
Hotel am Flakturm, 6. Wien       Projekt 2000 change
up Hotel am Flakturm, 6. Wien Hotel am Flakturm, 6. Wien
pdf-klein